

w04//
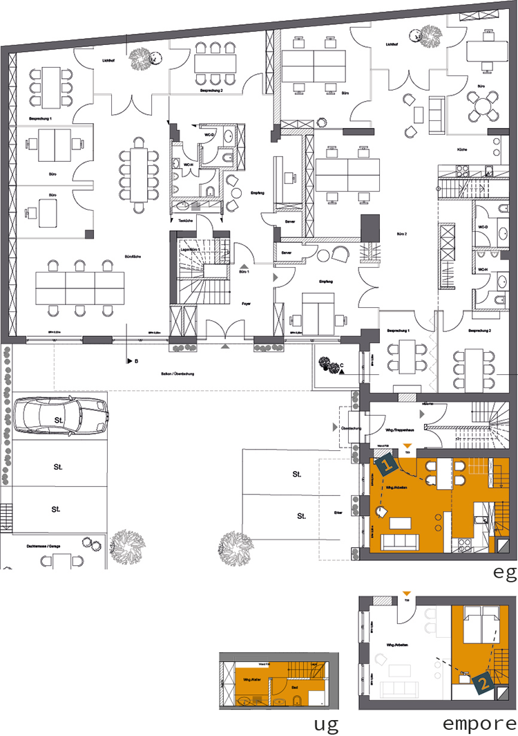
Appartment (EG/OG/KG)
ca. 46 m²
Smarter kann man Raum kaum ausgestalten. Diese etwa 46 Quadratmeter haben es in sich. Wohnen auf Erdgeschossebene, Schlafen auf der Empore – und ein Wirtschaftsraum mit Bad im Keller. Das ist junges Wohnen pur – Treppen muss man mögen, das geben wir gerne zu.
Dies ist ein Mustergrundriss, der im Rahmen des Planungs- und Vermietungsfortschrittes variieren kann.